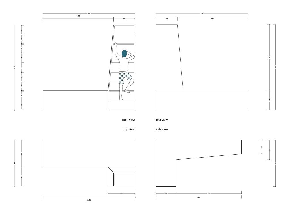
Three archetypal spatial forms are unified into a functional object that can be re-oriented and used differently when rotated. Made in collaboration with the architect Diego Sologuren.
Tunnel, Platform, and Ladder
Public Work
2016,
Material: Aluminum, d-bond, mounting hardware, rivets
2016,
Uckermark, Germany
UM Festival um-festival.de
Material: Aluminum, d-bond, mounting hardware, rivets
in collaboration with Diego Sologuren